Lanțuri anti-curbură din oțel inoxidabil pentru împingerea ferestrei

Lanțul anti-îndoire pentru ferestre din oțel inoxidabil este un lanț special conceput utilizat pe scară largă în sistemele de ferestre care necesită o performanță stabilă și fiabilă. Acest lanț este adesea utilizat în sisteme de uși automate, dispozitive de deschidere a ferestrelor și alte dispozitive mecanice care trebuie să prevină deformarea prin îndoire.

Descriere

Lanț anti-curbură pentru ferestre și uși din oțel inoxidabileste o soluție avansată de lanț proiectată pentru sistemele de uși și ferestre împinse care necesită fiabilitate, stabilitate și rezistență ridicată la îndoire. Fabricat din oțel inoxidabil de înaltă calitate, acest lanț este proiectat pentru medii care necesită rezistență excepțională la coroziune, rezistență și igienă.

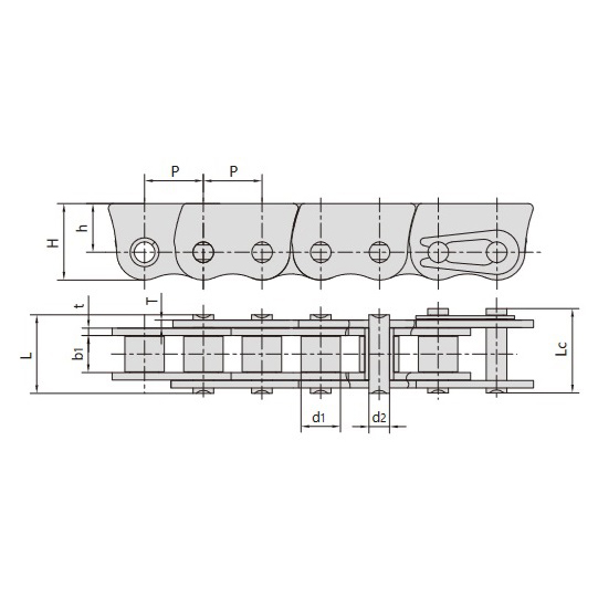
Caracteristici structurale

  • Placă de legătură:Verigile robuste din oțel inoxidabil formează coloana vertebrală a lanțului, oferind suport consistent și forță motrice.
  • Design anti-îndoire:Structurile ranforsate ale verigilor și dispozitivele specializate anti-curbură sporesc rigiditatea, prevenind deformarea și menținând stabilitatea lanțului în condiții de sarcină mare sau utilizare prelungită.
  • Role:Rolele opționale lucrează cu pinioanele pentru a minimiza frecarea, asigurând o mișcare lină și eficientă.
  • Conexiune cu știfturi:Pinii de precizie conectează verigile lanțului, permițând o rotație controlată și o funcționare lină.

Principiul de funcționare

  • Acționarea pinionului:Angrenajele roților dințate se cuplează cu rolele sau plăcile de legătură, oferind o mișcare fiabilă de-a lungul căii dorite.
  • Funcție anti-flexiune:Întăririle structurale mențin rigiditatea lanțului, prevenind îndoirea și asigurând performanțe constante.
  • Acțiune cu role:Rolele reduc frecarea și uzura, îmbunătățind buna funcționare și longevitatea.
  • Mișcare cu pini:Pinii permit rotația flexibilă între verigi, facilitând mișcarea fără întreruperi a lanțului.
  • Adaptabilitate:Construit special pentru mișcările de deschidere/închidere a ferestrelor prin împingere, asigurând o funcționare stabilă și fiabilă.

Caracteristici și beneficii cheie

  • Rezistență la coroziune:Construcția din oțel inoxidabil rezistă în medii umede și agresive chimic.
  • Capacitate anti-îndoire:Proiectele avansate previn îndoirea și deformarea lanțului, menținând fiabilitatea sistemului.
  • Rezistență ridicată și rezistență la uzură:Ideal pentru sarcini grele și utilizare frecventă, reducând uzura și îmbunătățind durabilitatea.
  • Stabilitate:Proiectat pentru o mișcare lină și stabilă în sistemele de ferestre și uși, minimizând nevoile de întreținere.
  • Adaptabilitate puternică:Potrivit pentru diverse mecanisme de împingere a ferestrelor, ușilor și mecanismelor complexe de comutare.
  • Igienă:Oțelul inoxidabil ușor de curățat este perfect pentru aplicații medicale, alimentare și alte aplicații sensibile la igienă.

Aplicații

  • Sisteme de uși și ferestre de împingere
  • Mecanisme arhitecturale de comutare
  • Echipamente medicale și din industria alimentară
  • Orice sistem care necesită fiabilitate ridicată, performanță anti-îndoire și rezistență la coroziune

Lanțul anti-curbură pentru ferestre de împingere din oțel inoxidabil este alegerea de încredere pentru sistemele care necesită soluții de lanț robuste, stabile și igienice. Designul său superior și selecția materialelor asigură fiabilitate și performanță pe termen lung chiar și în cele mai solicitante medii.

Parametrii tehnici

lanțuri din oțel inoxidabil anti-sidebow pentru împingerea mesei tehnice a ferestrei

lanțuri din oțel inoxidabil anti-sidebow pentru împingerea ferestrei tabel tehnic