lanț transportoare dublu articulat cu transport cu mișcare universală

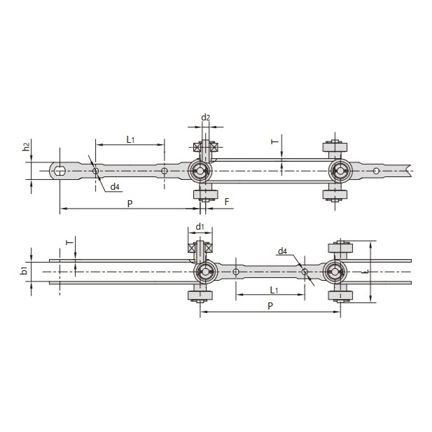
Lanțul transportoare cu articulație dublă este un dispozitiv mecanic care constă din două lanțuri mobile paralele și sincronizate. Fiecare lanț constă dintr-un număr de verigi de conectare care sunt conectate prin balamale.

Descriere

Lanțul transportor dublu articulat este proiectat pentru flexibilitate ridicată și adaptabilitate la sarcină. Structura sa unică permite lanțului să se rotească flexibil sub presiunea sarcinii și a impactului, făcându-l potrivit pentru diferite condiții de lucru și cerințe de încărcare.

Caracteristici

  • Flexibilitate:Fiecare verigă este conectată prin balamale, oferind lanțului o flexibilitate excelentă pentru a se adapta la diferite medii de îndoire și torsiune.
  • Capacitate de susținere a sarcinii:Rolele se rotesc pe știfturi și manșoane întărite, permițând lanțului să reziste la presiuni și impacturi ridicate pentru o funcționare fiabilă la sarcini grele.
  • Sincronizare:Două lanțuri paralele se mișcă sincron, asigurând stabilitate și eficiență în timpul transportului de materiale.
  • Adaptabilitate:Pasul lanțului poate fi ajustat pentru a îndeplini diferite cerințe de lucru pentru diverse aplicații.

Aplicații

  • Utilizat pe scară largă în domenii industriale, cum ar fi manipularea materialelor și transmisia liniei de producție.
  • Ideal pentru medii de lucru complexe și nevoi de transport care necesită atât flexibilitate, cât și rezistență.
Parametrii tehnici

tabel tehnic cu lanț transportoare cu balamale duble

tabel tehnic lanț transportoare cu balamale duble